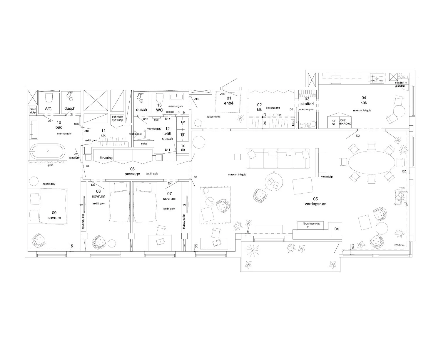
FLORAGATAN

Apartment renovation in Stockholm.

Photos: Åke E:son Lindman.

Previous
Previous

NANSEN & SÖDERHAVET

Next
Next

A CASTLE IN THE PARK